网站首页
关于我们
产品中心
新闻资讯
人才招聘
案例中心
联系我们
产品中心
产品中心
户外不锈钢防护箱
箱式变电站系列
高压开关柜系列
低压开关柜系列
户外环网柜系列
高压电缆分接箱系列
户内高压负荷开关系列
户内高压真空断路器系列
不锈钢箱体系列
电缆护层接地箱
环保柜系列
固体柜系列
户外不锈钢防护箱
电话:0577-27828050
手机:13388556555
邮箱:13388556555@163.com
地址:浙江省乐清市柳市镇上游村京游七路65号
概述
不锈钢户外防护箱是一种根据元件型号、规格、数量设计组装成各种控制功能的配电箱,由于箱体的尺寸大小可以任意选择使结构紧密到相当完善的组合。
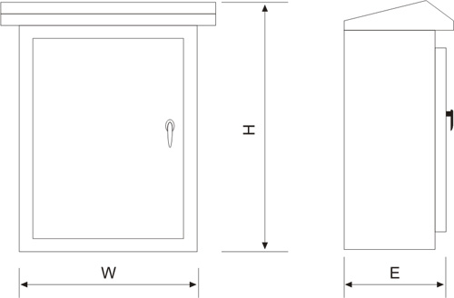
外形尺寸
上一篇:
不锈钢JXF控制箱
下一篇:
不锈钢单相电表箱
返 回
长沙做网站